Menu

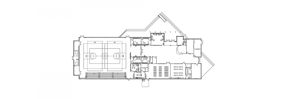
Salvation Army Boys & Girls Club

20,785 sqft | Shreveport, LA | 2011

This new building replaces the old Irish McNeil Gym that had been home to the Shreveport Boys & Girls Club for decades before a devastating fire destroyed it. Located adjacent to the State Fairgrounds Park, the facility provides a safe place for the communities’ children to learn new skills and practice sportsmanship and teamwork. Interior spaces include a basketball court, games room, crafts room with a pottery kiln, music room, computer lab, teen center, and staff offices. An overhead series of clerestory windows provide natural lighting into the large games area and basketball court.

 

Salvation Army Boys & Girls Club view project details